Главная
О поселке
Природа
Выбрать дом
Расположение
Яхт-клуб
Инфраструктура
Завидово
Генплан
Фото
Инвестиции
Ипотека
Контакты
Адрес:
Тверская область, Конаковский муниципальный округ, деревня Слобода
Время работы:
Ежедневно 10:00-19:00
+7 (495) 032-40-30
Заказать звонок
волжский
берег
+7 (800) 500-44-21
Контакты
Ипотека
Инвестиции
Фото
Генплан
Завидово
Инфраструктура
Яхт-клуб
Локация
Выбрать дом
Природа
О поселке
Заказать звонок
+7 (495) 032-40-30
«Волжский Берег»
/
Дома
/
VCOAST 341
«Волжский Берег»
/
Выбрать дом
/
VCOAST 341
от 73 780 000 ₽
Vcoast 341
Записаться на просмотр
▶ Видеооблёт дома
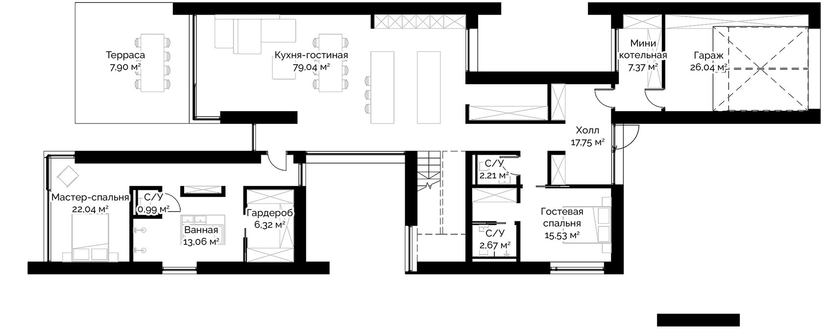
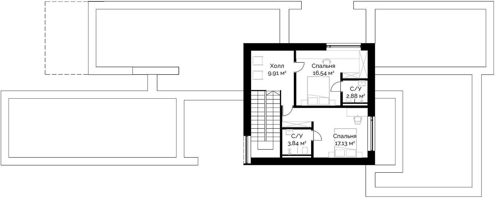
2 этаж
1 этаж
2 этажа
Кол-во этажей:
от 14 сот.
Площадь участков:
Крытая терраса:
25,00 м²
Кол-во санузлов:
5 санузлов
Кол-во спален:
4 комнаты
340,62 м²
Общая площадь:
Запишитесь на просмотр дома
Оцените район и окружение поселка
Замерьте расстояние и время в дороге
Насладитесь окружающей природой
Подберите себе дом!
[{"lid":"1750327055962","ls":"10","loff":"","li_parent_id":"","li_type":"ph","li_ph":"+7 (000) 000 00-00","li_name":"Phone","li_masktype":"a","li_maskcountry":"RU","li_mask":"+7 (999) 999 99-99","li_req":"y","li_inputinrow":"y","li_inputwidth":"1","li_nm":"Phone"},{"lid":"1750327055963","ls":"20","loff":"","li_parent_id":"","li_type":"cb","li_label":"\u0414\u0430\u044e \u0441\u043e\u0433\u043b\u0430\u0441\u0438\u0435 \u043d\u0430
\u043e\u0431\u0440\u0430\u0431\u043e\u0442\u043a\u0443 \u043f\u0435\u0440\u0441\u043e\u043d\u0430\u043b\u044c\u043d\u044b\u0445 \u0434\u0430\u043d\u043d\u044b\u0445<\/a>","li_req":"y","li_inputwidth":"1","li_nm":"Checkbox"},{"lid":"1750327055964","ls":"30","loff":"y","li_parent_id":"","li_type":"hd","li_name":"ymclientid","li_value":"+clientYandexId+","li_nm":"ymclientid"},{"lid":"1758886874056","ls":"40","loff":"","li_parent_id":"","li_type":"hd","li_name":"yclid","li_nm":"yclid"}]
Магистральный газ
— По границе участка;
Водоснабжение
— Собственная скважина;
Электричество —
От наружных сетей;
Канализация
— Индивидуальный септик
*Все коммуникации входят в стоимость
городские коммуникации
Конструктивные решения
Фундамент
— Монолитная плита;
Наружные стены
— Газосиликатный блок 300 мм;
Перегородки
— Кирпич керамический полнотелый 120 мм;
Перекрытие
— Монолитное железобетонное;
Фасадная отделка
— Ригельная плитка, доска из лиственницы, фиброцементные панели;
Оконные блоки
— Двухкамерный стеклопакет, алюминиевая рама;
Кровля
— Железобетонное перекрытие с утеплением экструдированным пенополистиролом и устройством разуклонки из керамзитобетона;
Покрытие кровли
— Кровельная ПВХ мембрана;
Водоотвод
— организованный с поверхности плоской кровли с помощью разуклонки и устройства парапетных воронок;
Отмостка
— Мягкая по периметру здания с засыпкой щебнем.
6%
от
Семейная
6%
от
IT
Ипотека от 6%. всю рутину берем на себя
Есть свой ипотечный менеджер. Подготовим документы, сориентируем по условиям и подадим заявку в банк!
Получите консультацию по поселку!
Оставьте контакты, наш специалист по поселку свяжется с вами по телефону и расскажет о поселке, текущих акцях и спецпредложениях!
[{"lid":"1748864986502","ls":"10","loff":"","li_parent_id":"","li_type":"ph","li_ph":"+7 (000) 000 00-00","li_title":"\u0414\u043e\u0441\u0442\u0430\u0442\u043e\u0447\u043d\u043e \u043e\u0441\u0442\u0430\u0432\u0438\u0442\u044c \u043d\u043e\u043c\u0435\u0440 \u0442\u0435\u043b\u0435\u0444\u043e\u043d\u0430","li_name":"Phone","li_masktype":"a","li_maskcountry":"RU","li_mask":"+7 (999) 999 99-99","li_req":"y","li_inputinrow":"y","li_inputwidth":"1","li_nm":"Phone"},{"lid":"1748865518310","ls":"20","loff":"","li_parent_id":"","li_type":"cb","li_label":"\u0414\u0430\u044e \u0441\u043e\u0433\u043b\u0430\u0441\u0438\u0435 \u043d\u0430
\u043e\u0431\u0440\u0430\u0431\u043e\u0442\u043a\u0443 \u043f\u0435\u0440\u0441\u043e\u043d\u0430\u043b\u044c\u043d\u044b\u0445 \u0434\u0430\u043d\u043d\u044b\u0445<\/a>","li_req":"y","li_inputwidth":"1","li_nm":"Checkbox"},{"lid":"1748864986503","ls":"30","loff":"y","li_parent_id":"","li_type":"hd","li_name":"ymclientid","li_value":"+clientYandexId+","li_nm":"ymclientid"},{"lid":"1758886657979","ls":"40","loff":"","li_parent_id":"","li_type":"hd","li_name":"yclid","li_nm":"yclid"}]